Window Detail 01 for Set Build
Window Detail 01 for Set Build
Window Detail 02 for Set Build
Window Detail 02 for Set Build
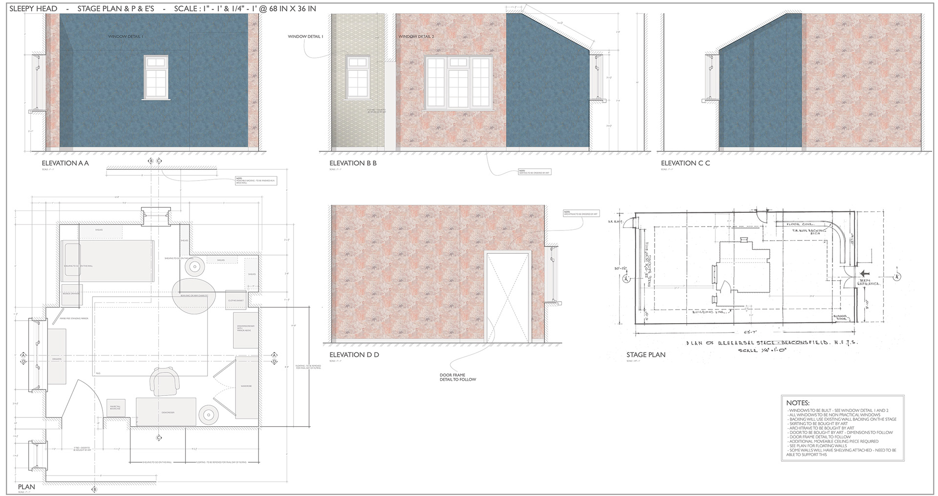
Plans and Elevations with dressing plan and wallpaper details
Plans and Elevations with dressing plan and wallpaper details

You may also like

Back to Top